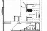
Big, beautiful corner home north of Cortland, detached on 3 sides with abundant windows, natural light, greenery and views of the Bay. The home has 5 large bdrms (2 ensuite), 3 baths, 2 kitchens, ample storage, 3000SF. Flexible floor plan dwnstrs 2bds, 1ba, kit, LR, give possibility for multi-gen family, nanny, rental income, etc. The upstairs kitchen, living/dining room, and baths have been tastefully remodeled. Numerous amenities: floating gas fireplace, Ketra dynamic LED lighting, 6kW Sunpower solar system, Kinetico whole-home water filtration, security sys, chemical-free hot tub, decks 3 levels, rear garden. Close to 101, 280, shopping, restaurants. This is a spectacular home in what Business Insider calls the hottest neighborhood in SF
501 Franconia Street
San Francisco, CA 94110
United States2250.00
3025.00







































